ZTV Roudné - RD "98AB" ""OBA VOLNÉ"

ZTV Roudné - RD "98AB" ""OBA VOLNÉ"

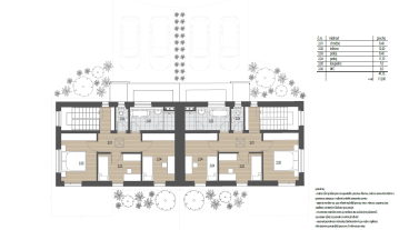
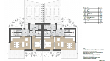
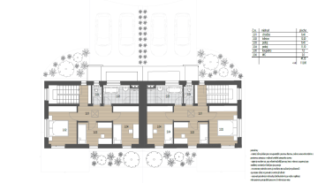
Aktuálně zahájená výstavba rodinného dvojdomku v rámci ZTV Roudné. Objekt má 2 nadzemní podlaží, prostornou zahradu s možností zahradního domku a venkovní parkování s plochou pozemku 489 m2 resp. 458 m2.

Moderní zpracování je samozřejmostí a společně s prostornými místnostmi, počínaje velkým obývacím pokojem s kuchyní, nabízí komfortní rodinné bydlení v klidné částí. Užitná plocha objektu činí přibližně

Cena: 11 335 000,-

Pro bližší informace nás kontaktujte a domluvte si schůzku na cestě k novému bydlení!