ZTV Roudné - RD "97AB" ""OBA VOLNÉ"

ZTV Roudné - RD "97AB" ""OBA VOLNÉ"

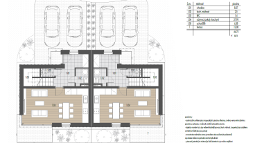
Aktuálně zahájená výstavba rodinného dvojdomku v rámci ZTV Roudné. Objekt má 2 nadzemní podlaží, prostornou zahradu s možností zahradního domku a venkovní parkování s plochou pozemku 338 m2 resp. 339 m2. Moderní zpracování je samozřejmostí a společně s prostornými místnostmi, počínaje velkým obývacím pokojem s kuchyní, nabízí komfortní rodinné bydlení v klidné částí. S užitnou plochou přibližně 100 m2 a terasou o rozloze 12 m2 se řadí mezi útulnější domky, ale výhodou je cenová dostupnost.

Cena: 9 755 000,-

Pro bližší informace nás kontaktujte a domluvte si schůzku na cestě k novému bydlení!